Gaziantep Havuzlu Bağ Evi Projesi – Anahtar Teslim Uygulama
Doğayla uyumlu mimari, planlı şantiye yönetimi ve anahtar teslim teslimat yaklaşımıyla; havuzlu, müstakil bağ evi projemizi uygulama disipliniyle hayata geçirdik.
Gaziantep Bağ Evi (Havuzlu) – Cirnooğlu İnşaat
Gaziantep’te konumlanan havuzlu bağ evi projemiz; tek katlı, müstakil yaşam kurgusu ve geniş açık alan kullanımıyla planlanmıştır. Proje sürecinde ihtiyaç analizi ve arsa koşulları değerlendirilmiş, onaylanan konsept doğrultusunda mimari ve teknik planlama yapılmıştır. Uygulama aşamasında şantiye organizasyonu, kalite kontrol ve iş programı takibiyle süreç yönetimi sürdürülmüş; yapı, planlı ilerleyen uygulama adımlarıyla anahtar teslim seviyesinde tamamlanmıştır.
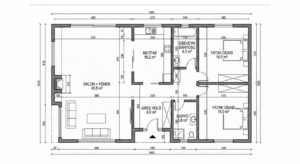
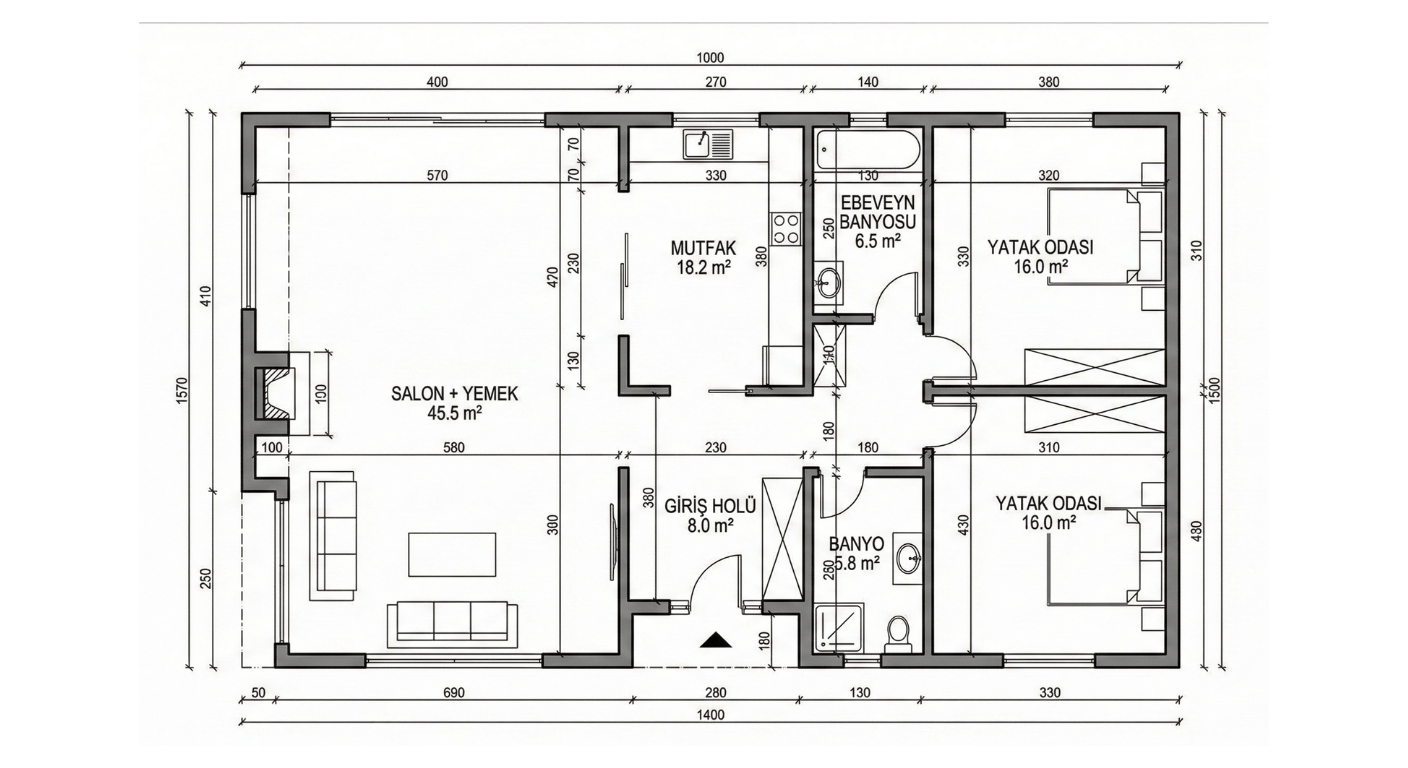
Taş dokulu dış cephe detayları, doğal tonlarda iç mekân malzeme kurgusu, geniş açıklıklar ve havuz ilişkisi sayesinde projenin yaşam konforu artırılmıştır. Plan çözümünde salon+yemek alanı merkezi bir kullanım sunarken; mutfak, iki yatak odası ve ebeveyn banyosu ile fonksiyonel bir yerleşim sağlanmıştır.
Proje Künyesi
- Lokasyon: Gaziantep (kırsal/bağ alanı konsepti)
- Yapı Tipi: Müstakil tek kat bağ evi + müstakil havuz
- Oda Düzeni: 2+1 (salon+yemek, mutfak, 2 yatak odası 1 ebeveyn banyosu + 1 ortak banyo)
- Havuz: Betonarme gövde, çevre deck/kaplama alanı
- Teslim Modeli: Anahtar teslim
Teknik Bilgiler
- Taşıyıcı Sistem: Betonarme taşıyıcı sistem (kolon-kiriş-döşeme)
- Deprem Yönetmeliği: Türkiye Bina Deprem Yönetmeliği’ne uygun proje ve uygulama yaklaşımı
- Zemin ve Temel: Zemin koşullarına göre temel sistemi (radye/tekil temel seçimi saha koşullarına göre)
- Dış Cephe: Taş görünümlü kaplama detayları + sıva/boya uygulaması
- Çatı: Eğimli çatı + kiremit kaplama (proje görselleriyle uyumlu)
- Isı Yalıtımı: Dış cephe ısı yalıtım sistemi (EPS/taşyünü tercihleri projeye göre)
- Kapı/Pencere: Isıcamlı PVC veya alüminyum doğrama (proje standardına göre)
- Mekanik Tesisat: Temiz su – atık su tesisatı altyapısı, banyo-mutfak hatları
- Elektrik Tesisatı: Aydınlatma, priz hatları, pano ve zayıf akım altyapısı
- Havuz İmalatı: Betonarme gövde + su yalıtımı + kaplama (seramik/liner), çevre düzeni
- Çevre Düzenleme: Bahçe duvarı, peyzaj ve yürüyüş yolları (kilit taş/taş kaplama konsepti)
Bu Projede Sunulan Kapsam (Anahtar Teslim Kalemleri)
- Keşif ve ihtiyaç analizi
- Konsept tasarım ve planlama
- Uygulama organizasyonu ve şantiye yönetimi
- Kaba inşaat ve ince işler
- Islak hacimler (banyo/mutfak) uygulamaları
- Havuz imalatı ve çevre düzenleme
- Son kontrol ve anahtar teslim teslimat






